BUNGALOW RENOVATION
VA HIGHLANDS, GA
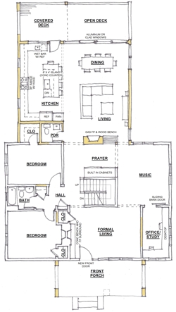
Modern renovation and addition to an original Virginia Highlands bungalow to include a new master suite, living space, kitchen, and lower level garage.