PROJECT:

RANCH RENOVATION

LOCATION:

BUCKHEAD, GA

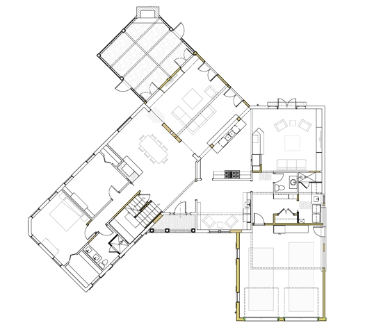
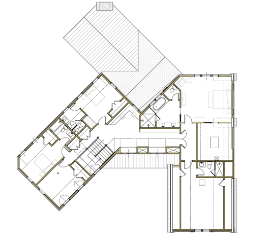
Second story addition to an existing ranch. Renovations include an open living area, new garage, and a large master suite on the second floor.

Back to All Projects